Container Sanitar
Containerele sanitare oferă o soluție practică, igienică și rapidă pentru amenajarea unor grupuri sanitare mobile, indiferent de locație. Fie că este vorba despre șantiere, evenimente, unități de cazare temporară sau situații de urgență, aceste containere sunt gândite pentru a răspunde celor mai exigente cerințe în materie de igienă și confort.
Containerele sanitare pot fi echipate cu o gamă variată de dotări:
- Lavoare cu robinet și oglinzi;
- WC-uri și cabine de duș complet funcționale;
- Dozatoare de săpun, suporturi pentru prosoape de hârtie, coșuri de gunoi;
- Sisteme de încălzire și ventilare;
- Iluminat interior eficient energetic;
- Accesorii suplimentare la cerere.
Oferim containere sanitare echipate cu toalete, dușuri și chiuvete, care pot fi utilizate individual sau în combinație, în funcție de nevoile proiectului tău. Acestea pot fi instalate rapid, relocate cu ușurință și adaptate pentru utilizare pe termen scurt sau lung.
Disponibile în diferite dimensiuni și configurații, containerele WC și cu duș sunt soluția ideală pentru spații unde infrastructura sanitară lipsește sau este insuficientă.
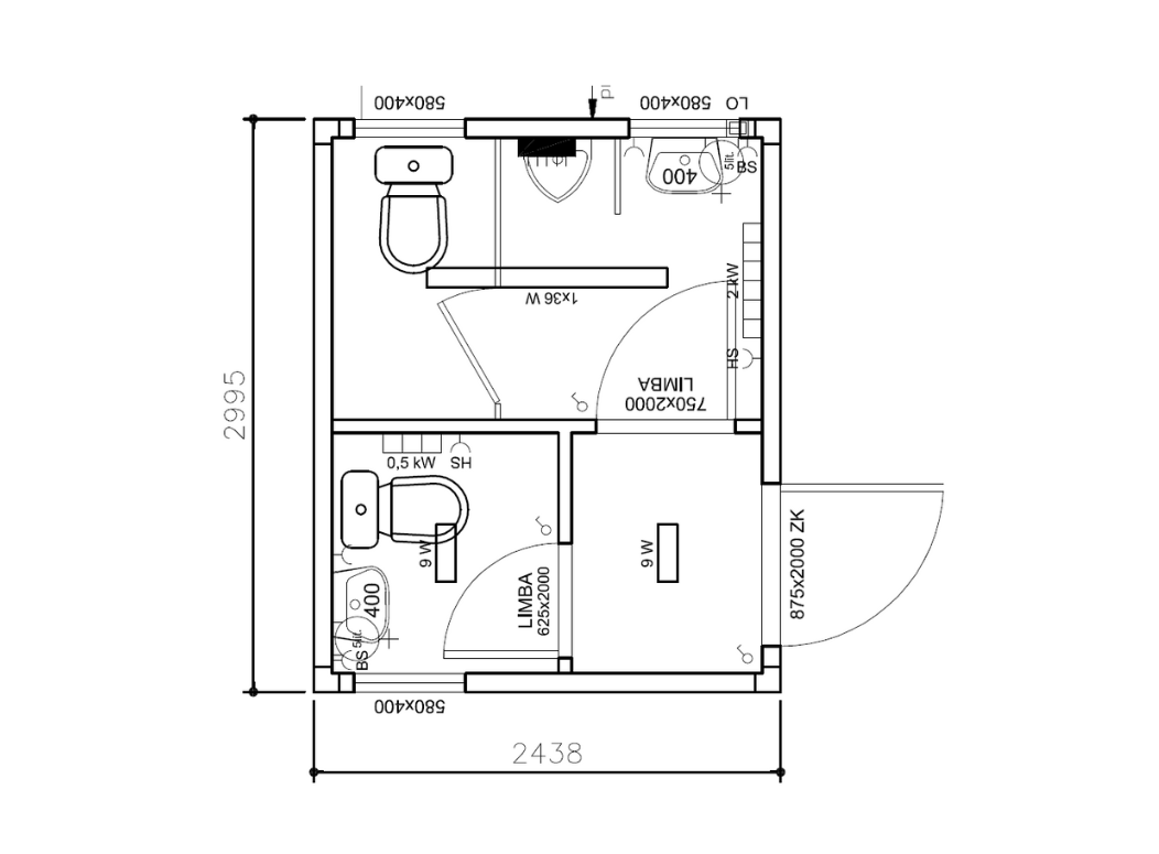
1 toaletă, 1 chiuvetă, 1 boiler 5L
Ușor de ansamblat, se poate utiliza în orice configurație
Adecvat pentru 5 persoane
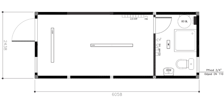
1 toaletă, 1 chiuvetă, 1 duș, 1 boiler 80L
Ușor de ansamblat, se poate utiliza în orice configurație
Adecvat pentru 5 persoane
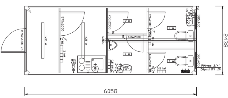
6 cabine toaletă, 3 pisoare, 2 chiuvete, 2 boilere de 5L
Adecvat pentru 50 femei și 25 bărbați
4 dușuri, 2 lavoare cu câte 3 baterii, 1 boiler 400L
Adecvat pentru 50 persoane
2 dușuri, lavoar cu 2 baterii, 1 chiuvetă
2 toalete, 2 pisoare, 1 boiler 300L
Adecvat pentru 25 persoane
4 toalete, 3 pisoare, 2 chiuvete, 2 boilere de 5L
Adecvat pentru 50 persoane
1 duș, 1 toaletă, 1 pisoar, 1 boiler 80L
1 chiuvetă, 1 boiler 5L, 1 minibucătărie
Adecvat pentru 10 persoane
2 toalete, 1 pisoar, 2 chiuvete
1 minibucătărie, 2 boilere de 5L
Adecvat pentru 25 persoane
2 dușuri, lavoar cu 2 baterii, 1 chiuvetă
2 toalete, 2 pisoare, 1 boiler 300L
Adecvat pentru 25 persoane
4 toalete, 3 pisoare, 2 chiuvete, 2 boilere de 5L
Adecvat pentru 50 persoane
2 toalete, 1 pisoar, 2 chiuvete
1 minibucătărie, 2 boilere de 5L
Adecvat pentru 25 persoane
4 dușuri, 2 lavoare cu câte 3 baterii, 1 boiler 400L
Adecvat pentru 50 persoane
2 chiuvete, 1 duș, 1 toaletă, 1 pisoar, 1 boiler 80L
Adecvat pentru 10 persoane
2 toalete, 1 pisoar, 2 chiuvete
2 boilere de 5L
Adecvat pentru 25 persoane
%20(1).jpg)
%20(1).jpg)
.jpg)